Používame cookies

Súbory cookie a ďalšie technológie sledovania používame na zlepšenie vášho zážitku z prehliadania našich webových stránok, na to, aby sme vám zobrazovali prispôsobený obsah a cielené reklamy, na analýzu návštevnosti našich webových stránok a na pochopenie toho, odkiaľ naši návštevníci prichádzajú. Viac info

 

ČORDÁKOVA ul. - KVP 3 izbový byt 70 m2 Pekná lokalita

Interné ID: MH
Ulica: Čordákova
Obec: Košice-Sídlisko KVP
Okres: Košice II
Kraj: Košický kraj
Druh: Byty
Typ: Predaj
Typ bytu: 3-izbový byt
195 000 €

Popis nehnuteľnosti

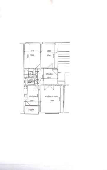
Realitná kancelária MH Real Vám ponúka na predaj zrekonštruovaný 3 izbový byt na ul. Čordákova sídlisko KVP.

Pekný, priestranný byt o rozlohe 68,30 m² so zasklenou lodžiou (3,40 m²) sa nachádza na 1 poschodí/8, orientácia V/J. Pod bytom sa nachádzajú pivnice a kočikáreň. Pri rekonštrukcii obytného domu boli zateplené stropy pivníc minerálnou vlnou o hrúbke 10 cm + omietka. Stanovište výťahu na poschodí.

Dispozične pozostáva z 3 samostatných izieb, kuchyne (vstup na lodžiu), kúpeľne (vaňa, umývadlo), samostatného WC, predsiene a chodby. 

Rekonštrukcia zahŕňala: výmenu okien - plastové, radiátorov, rozvody vody - odpadu, murované jadro, kuchynská linka na mieru (plynový sporák s el. rúrou, umývačka riadu, digestor), plávajúce podlahy v izbách, omietky všetky miestnosti, vstavané skriňa v predsieni a izbe.

Obytný dom je po kompletnej rekonštrukcii (zateplenie minerálnou vlnou + omietka, spoločné priestory, výťah, zateplenie a zasklenie lodžií). Nachádza v tichej lokalite s kompletnou občianskou vybavenosťou MŠ, ZŠ, multifunkčné ihrisko, sieť obchodov, detské ihrisko, dostatok zelene a iné.

V nami ponúkanej cene, sú zahrnuté náklady spojené s kúpou nehnuteľnosti, vrátane vypracovania zmlúv advokátskou kanceláriou. V prípade záujmu, Vám radi pomôžeme s najvýhodnejšou formou financovania prostredníctvom HÚ. 

Ak hľadáte pokojné miesto na bývanie peknom prostredí, kontaktujte nás na tel. čísle 0918 336 411 M. Hrehorová.

Vlastnosti

Status:
aktívne
Vlastníctvo:
osobné
Úžitková plocha:
68.3 m2
Stav:
čiastočne prerobený
Počet izieb:
3
Typ budovy:
panelová stavba
Loggia:
áno
Pivnica:
áno
Verejné vonkajšie parkovanie:
áno
Výťah:
áno
Rok výstavby:
1985
Plocha loggie:
3.4 m2
Pivnica plocha:
1.33 m2
Status:
aktívne
Vlastníctvo:
osobné
Úžitková plocha:
68.3 m2
Stav:
čiastočne prerobený
Počet izieb:
3
Typ budovy:
panelová stavba
Loggia:
áno
Pivnica:
áno
Verejné vonkajšie parkovanie:
áno
Výťah:
áno
Rok výstavby:
1985
Plocha loggie:
3.4 m2
Pivnica plocha:
1.33 m2

Informatívna úverová kalkulačka

Pozrieť na mape

Maklér

Marianna Hrehorová

Konateľ, realitný maklér

Slovensky

Radi Vám poradíme

Podobné nehnuteľnosti