Používame cookies

Súbory cookie a ďalšie technológie sledovania používame na zlepšenie vášho zážitku z prehliadania našich webových stránok, na to, aby sme vám zobrazovali prispôsobený obsah a cielené reklamy, na analýzu návštevnosti našich webových stránok a na pochopenie toho, odkiaľ naši návštevníci prichádzajú. Viac info

 

VAJKOVCE - 3 izbový rodinný dom iba 10 km od Košíc

Interné ID: MH
Obec: Vajkovce
Okres: Košice - okolie
Kraj: Košický kraj
Druh: Domy
Typ: Predaj
Typ domu: Rodinný dom
149 000 €

Popis nehnuteľnosti

Realitná kancelária MH Real Vám ponúka na predaj rodinný dom v obci Vajkovce, 10 km od Košíc a 2 km od diaľničného privádzača.

Pozemok je rovinatý s rozlohou 512 m2 (možné a súčasné využívanie plochy pozemku cca 700 m2), zastavaná plocha 118 m2 a obytná plocha cca 98 m2. 

Dom je v pôvodnom stave, nutná celková rekonštrukcia.
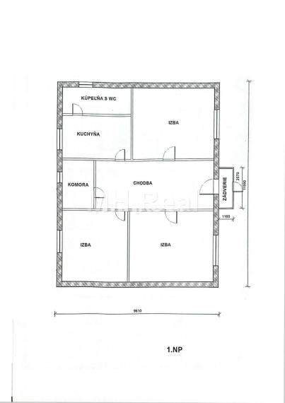
DISPOZIČNÉ RIEŠENIE: 3 x samostatná izba, kuchyňa, kúpeľňa (WC, sprchovací kút, umývadlo), chodba, predsieň, komora. Kuchyňa je prechodová - vstup do kúpeľne.

Inžinierske siete: na pozemku nové prípojky - elektrina 240/380 V, obecný vodovod a kanalizácia. Dom nieje napojený na na novo zriadené prípojky. Vykurovanie - v minulosti sa využívalo kúrenie na plyn, v súčasnosti odpojená plynová prípojka.

Stavebný materiál - kváder, strecha - rovná, krytina - pozinkovaný plech.
Pozemok je oplotený so vstupom z asfaltovej komunikácie. V časti pozemku nové oplotenie r. 2024.

Občianska vybavenosť v obci: MŠ, reštaurácia, 2x potraviny, kostoly, multifunkčné ihrisko. ZŠ je v obci Budimír s pravidelným školským spojom.

V nami ponúkanej cene, sú zahrnuté náklady spojené s kúpou nehnuteľnosti, vrátane vypracovania zmlúv advokátskou kanceláriou. V prípade záujmu, Vám radi pomôžeme s najvýhodnejšou formou financovania prostredníctvom HÚ. 

Bližšie informácie na tel. čísle 0918 336 411 M. Hrehorová. 

Vlastnosti

Status:
aktívne
Vlastníctvo:
osobné
Plocha pozemku:
512 m2
Typ zeme:
rovina
Teritórium:
Intravilán
Úžitková plocha:
98 m2
Zastavaná plocha:
118 m2
Stav:
pôvodný stav
Počet izieb:
3
Typ výbavy:
holopriestor
Špajza:
áno
Rok výstavby:
1983
Celková plocha:
98 m2
Inžinierske siete:
áno
Voda:
áno
Elektrika:
áno
Kanalizácia:
áno
Voda - na pozemku:
áno
Elektrika - na pozemku:
áno
Kanalizácia - na pozemku - kanalizácia:
áno
Status:
aktívne
Vlastníctvo:
osobné
Plocha pozemku:
512 m2
Typ zeme:
rovina
Teritórium:
Intravilán
Úžitková plocha:
98 m2
Zastavaná plocha:
118 m2
Stav:
pôvodný stav
Počet izieb:
3
Typ výbavy:
holopriestor
Špajza:
áno
Rok výstavby:
1983
Celková plocha:
98 m2
Inžinierske siete:
áno
Voda:
áno
Elektrika:
áno
Kanalizácia:
áno
Voda - na pozemku:
áno
Elektrika - na pozemku:
áno
Kanalizácia - na pozemku - kanalizácia:
áno

Informatívna úverová kalkulačka

Pozrieť na mape

Maklér

Marianna Hrehorová

Konateľ, realitný maklér

Slovensky

Radi Vám poradíme

Podobné nehnuteľnosti