Používame cookies

Súbory cookie a ďalšie technológie sledovania používame na zlepšenie vášho zážitku z prehliadania našich webových stránok, na to, aby sme vám zobrazovali prispôsobený obsah a cielené reklamy, na analýzu návštevnosti našich webových stránok a na pochopenie toho, odkiaľ naši návštevníci prichádzajú. Viac info

 

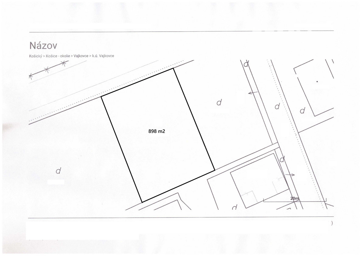
VAJKOVCE - pekný stavebný pozemok o výmere 898 m2

Interné ID: MH
Obec: Vajkovce
Okres: Košice - okolie
Kraj: Košický kraj
Druh: Pozemky
Typ: Predaj
Typ pozemku: Pozemky - pre rodinné domy
Iné:
167 000 €

Popis nehnuteľnosti

Realitná kancelária MH Real Vám ponúka na predaj stavebný pozemok v obci Vajkovce, iba 10 km od Košíc a 3 km od diaľničného privádzača.

Pekný, slnečný, prevažne rovinatý pozemok o výmere 898 m2 a šírke 25 m sa nachádza v zastavanom území obce s prístupom z asfaltovej komunikácie. V okolí sa nachádzajú novostavby rodinných domov.

Inžinierske siete - obecný vodovod a elektrina na hranici pozemku.

Pozemok je bez tiarch, kúpou voľný.

Obec Vajkovce je rozvíjajúca sa obec s dobrou občianskou vybavenosťou - materská škôlka, 2 x potraviny, reštaurácia, multifunkčné ihrisko, kostoly. Základná škola roč. 1-9 v susednej obci Budimír (školský spoj SAD).

V cene je zahrnutá sprostredkovateľská provízia a kompletný servis vrátane vypracovania zmlúv advokátskou kanceláriou. V prípade záujmu, Vám radi pomôžeme s možnosťou financovania prostredníctvom HÚ. 

Bližšie informácie na tel. čísle 0918 336 411 M. Hrehorová.

Vlastnosti

Status:
aktívne
Vlastníctvo:
osobné
Plocha pozemku:
898 m2
Status:
aktívne
Vlastníctvo:
osobné
Plocha pozemku:
898 m2

Pozrieť na mape

Maklér

Marianna Hrehorová

Konateľ, realitný maklér

Slovensky

Radi Vám poradíme

Podobné nehnuteľnosti